Универсальное помещение
Гагарина микрорайон, 7 Показать на карте
Гагарина микрорайон, 7 Показать на карте
Балашиха
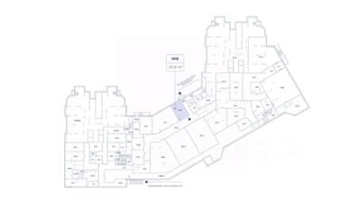
Помещение свободного назначения 16 метров в торговом центре ЗаряОбщие данные :полезная площадь - 16 метроввысота потолка - 2,5 метравход- отдельный из фойе ТЦ(центральный и с паркинга)фасадные витражи -дапотолок-подвеснойпол- плитка кафельстены - крашенная штукатуркаэлектрика -да (220В ,20 КВТ)мокрая точка-нетсан.узел - в торговом центреотопление- нет*фасадная реклама -давнутренняя навигация - даОсобенности:-наличие гарантийного взноса (1 месяц аренды)-работа в графике ТЦ Заря-отсутствие отдельного погрузочного входа-необходимость согласования наружной рекламы*Плюсы локации:-Соседство с супермаркетом Лента-100% заполненность ТЦ арендаторами-Бесплатный паркинг у ТЦ-Отличная пешеходная и транспортная доступность-Нахождение ТЦ в центре микрорайона-наличие физической охраны в ТЦ-высокий для района пешеходный трафикАрендодатель:-Мы владеем и управляем этим и другими объектами-Наше предложение и цена лучшие в локациидля чего подойдет помещение :розничная торговля офиссервисный центрпункт приема в химчистку вендинговый магазинавтозапчастиобувной магазинваш вариант*(кроме парикмахерской).фастфуд ( с автономным водоснабжением)мини-кофейняЗвоните!Не упустите шанс на выгодную аренду!Аренда от собственника,уютный офис,супермаркет,магазин,арендовать недорого,торговое место,магазин автозапчасти,офис в торговом центре,страховая компания
16 м2
- Показать контакты
- Добавить в избранное
16 м2
55 000 /мес.
3 437 /м2
