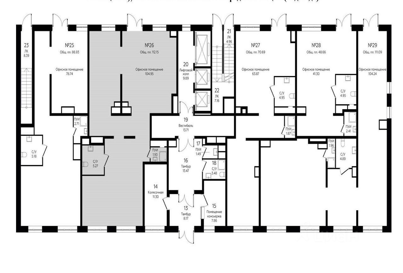
мкр. Новое Павлино, жилой квартал Новоград Павлино, к. 7.
Высокий пешеходный и автомобильный трафик, густонаселенный район. Первая линия со стороны Павлинского шоссе.
Нежилое помещение свободного назначения с отдельным входом со стороны шоссе общей площадью 112 кв.м. на 1 этаже 22-х этажного монолитного дома-новостройки. Сдача дома - декабрь 2025г. Без отделки. Потолки - 3,6 м. Электрическая мощность 22 кВт (может быть увеличена по потребностям арендатора).
Сдается на длительный срок.
К стоимости аренды + свет, вода по счетчикам + страховой депозит.



