2-к, Ситникова, 4 Показать на карте
Балашиха
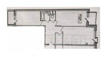
КРАТКО О КВАРТИРЕ: * ЖК комфорт-класса ''Новогиреевский''* Живописная локация с лесопарковыми зонами* В квартире 2 санузла* Имеется лоджия с французским остеклением* До остановки ~ 2 минуты пешком* 1 взрослый собственник, владеет более 5 летПОДРОБНЕЕ О КВАРТИРЕ: * Продается евродвушка. Московская область, Балашиха, мкр. Новое Измайлово, ул. Ситникова, 4. 3 километра от МКАД по Горьковскому шоссе. * Жилой комплекс находится в западной части Балашихи, в микрорайоне Новое Измайлово. Квартира в бетоне расположена на 8 этаже 17 этажного монолитного дома, 2018 года постройки. Площадь: общая ~ 46.2 м², жилая ~ 28.5 м², просторная и функциональная кухня-гостиная ~ 18.4 м², лоджия (с французским остеклением). Отличная квартира с удобной для жизни планировкой. В квартире установлены счетчики на воду и счетчики учета потребления тепловой энергии, что помогает экономить! У Вас есть прекрасная возможность придать характер помещениям, расставить акценты, реализовать Ваши самые смелые идеи, задумки и дизайнерские мечты! На этаже имеется дополнительный балкон. Ухоженная придомовая территория. Для автомобилистов оборудованы два больших наземных паркинга на территории ЖК. * Вся инфраструктура расположена в шаговой доступности: детский сад 50, детский сад 51 ''Аленький цветочек'', школа 20, кружки и секции для детей, супермаркеты ''Ашан'' и ''Супермаркет 1'', торговые центры ''Идея'', ''М7 Технопарк'', ''Мебель Plaza'', магазины ''Петрович'', ''Строй Plaza'', ''ВелоРим'', кафе и рестораны, пункты выдачи заказов: Яндекс Маркет, WB, Ozon. В пятистах метрах от ЖК раскинулся ''Горенский'' лесопарк. Недалеко расположены река Чернавка, Графский пруд, лесопарки ''Измайлово'' и ''Терлецкий''.Добраться до Москвы можно как на автобусах (ходят часто), так и по железной дороге. Недалеко от ЖК расположена железнодорожная платформа ''Стройка'', от которой можно примерно за полчаса доехать до Курского вокзала. Рядом с домом находится автобусная остановка, от нее отправляются прямые автобусы, следующие до метро ''Новогиреево'' (за ~ 14 минут) и ближайших микрорайонов Москвы.Помогу с ипотекой любой сложности!
46 м2
8 / 17 этаж
Монолит
- Показать контакты
- Добавить в избранное
46 м2
8 / 17 этаж
Монолит
7 700 000
166 667 /м2
