1-к, Новая, 9а Показать на карте
Балашиха
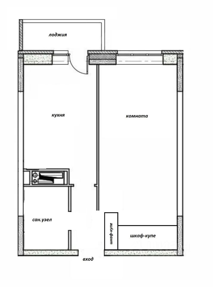
За объект уже внесли авансАрт. 74235312 КВАРТИРА ПОД АВАНСОМ!!! 6 минут пешком от МЦД 4!!! Продается прекрасная, светлая, просторная, 1-но комнатная квартира на 9том этаже! Квартира в хорошем состоянии! В прихожей вместительный шкаф купе, на полу плитка. Большая, светлая кухня с кухонным гарнитуром, просторная комната, с выходом на застекленную лоджию, санузел раздельно, весь в кафеле. Лоджия и окна выходят во двор. Этаж, лифты и подъезд в хорошем состоянии! Замечательные соседи! Бдительный консьерж!Очень ухоженная, озелененная придомовая территория! Благоустроенные детские площадки! Возле дома всегда есть парковочные места! Около дома, для прогулок сквер ''Победа'' и по близости ''Пестовский'' парк в 12мин ходьбы. Развитая инфраструктура, все в пешей доступности: детские и школьные учреждения, гимназия, спортивные учреждения, ледовая арена, новый спортивный комплекс ''Орион'', банки, поликлиника, магазины: Пятерочка, Дикси, и другие, также рынок и т.д.Один взрослый собственник, без обременений, полная сумма в договоре!6 минут пешком от МЦД 4!!! Звоните, будем рады показать!!!
42 м2
9 / 14 этаж
Панель
- Показать контакты
- Добавить в избранное
42 м2
9 / 14 этаж
Панель
7 200 000
170 616 /м2
