1-к, Калинина, 24 Показать на карте
Балашиха
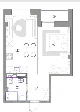
За объект уже внесли авансId 385841. Уютная однокомнатная квартира в новом монолитном доме в Балашихе. Продается светлая однокомнатная квартира площадью 30,2 кв. м в современном монолитном доме 2019 года постройки. Объект расположен на 15 этаже 17-этажного дома, что обеспечивает прекрасный обзор и тишину. Окна выходят во двор, создавая спокойную атмосферу без городского шума. Просторная кухня с выходом на застекленную лоджию позволяет комфортно проводить время за завтраком или ужином с видом на двор. Большой совмещенный санузел выполнен с учетом современных стандартов. Квартира идеально подойдет для молодых специалистов, студентов или в качестве инвестиции. Благодаря удачному расположению в Балашихе на улице Калинина, здесь есть все необходимое для комфортной жизни: во дворе находятся школа и детский сад, а в шаговой доступности — продуктовые магазины и кафе. Транспортная доступность на высоком уровне: автобусная остановка рядом с домом, а до станции МЦД можно добраться за 12 минут на транспорте или 25 минут пешком. Объект находится в собственности у одного взрослого владельца, приобретался напрямую у застройщика. В собственности более пяти лет, отсутствуют залоги и обременения, что делает сделку максимально безопасной и прозрачной. Не упустите возможность приобрести уютное жилье в развитом районе с отличной инфраструктурой. Сделки АН ''ОГРК'' застрахованы.Юридическое сопровождение сделки.Бесплатно окажем помощь в одобрении ипотеки у банков-партнеров на выгодных условиях.В живую смотрится еще интереснее! Звоните прямо сейчас, не откладывайте на завтра!Рассмотрим обмен на Вашу недвижимость.
30 м2
15 / 17 этаж
Монолит
- Показать контакты
- Добавить в избранное
30 м2
15 / 17 этаж
Монолит
5 999 999
198 675 /м2
