3-к, Свердлова, 45 Показать на карте
Балашиха
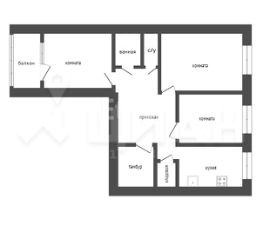
Продаётся просторная трех комнатная квратира с удобной, распашной планировкой. Расположена в тихом и уютном районе, по адресу: Балашиха, мкр. 21, ул. Свердлова, 45 на 4/10 этаже. Общая площадь 62,2 м2. В шаговой доступности находятся: магазины, пункты выдачи, кафе, салон красоты, детский сад, школы. Тихий, ухоженный двор с, удобно обустроенными детскими и спортивными площадками.Ремонт:- В комнатах поклеены обои- двойной стеклопакет, пластиковые окна- качественная мебель останется для будущих собственников по соглашению,- полы - ламинат и плитка в с/у- встроенная кухня, со всей необходимой бытовой техникой: духовой шкаф, микроволновая печь, газовая плита, холодильник с морозильной камерой.Мы поможем преобразить квартиру, чтобы она на 100% соответствовала вашему запросу. Доступны улучшения: частичный или капитальный ремонт, перепланировка, меблировка, установка бытовой техники под ключ!ТРАНСПОРТНАЯ ДОСТУПНОСТЬ:-у дома есть остановка автобусов с удобной транспортной развязкой- 5 минут пешком до автобусной остановки и 30 минут езды до станции метро ''Щёлковская''ИНФРАСТРУКТУРА РЯДОМ:- Детские сады 26,28 и школы 27, 29 и ''Земская гимназия'' в пешей доступности- ФОК ''Метеор''- спортивные площадки во дворе для взрослых и детей,- пункты выдачи- продуктовые магазины,- кафе- салон красоты- парикмахерская- пекарня- рынокЛЕГКО КУПИТЬ:- один собственник,- подходит под ипотеку, сертификат, материнский капитал.Звоните с 9-21. ТОРГ!Лот 477342
62 м2
4 / 10 этаж
Панель
- Показать контакты
- Добавить в избранное
62 м2
4 / 10 этаж
Панель
8 450 000
135 852 /м2
