1-к, Твардовского, 36к Показать на карте
Балашиха
Квартал Светлый это семейный, доступный, современный квартал состоящий из четырех 17-этажных жилых домов. Два из них возводятся на общем стилобате. Оригинальное архитектурное решение позволило максимально использовать преимущества собственного участка строительства. На крыше стилобата будет расположена благоустроенная зеленая зона отдыха на открытом воздухе, а внутри разместятся торговые и офисные помещения.В Квартале Светлый есть все для жизни, работы и развития в самом большом городе Московской области. Это формат безопасной, комфортной и практичной среды: 1238 квартир в монолитных домах, собственный детский садик и новая школа рядом, уютные дворы, зоны отдыха, крытый паркинг на территории квартала. Лесопарковые зоны в ближайшем окружении: Усадьба Пехра-Яковлевское, Кучинский лесопарк, Голицынский парк. Прекрасные места для отдыха и прогулок как пешком, так и на велосипедах всей семьей. А когда выпадает снег, есть все условия для занятий зимними видами спорта.Близость Шоссе Энтузиастов и остановок общественного транспорта, позволяет быстро и комфортно добираться до Москвы, как общественным транспортом, так и на своем автомобиле. Реализация проекта жилого квартала ''Светлый'' ведется на собственном участке земле площадью 2,4 га, по адресу: Московская область, г. Балашиха, ул. Твардовского, владение 36.ОБЪЕКТ СДАЕТСЯ БЕЗ ОТДЕЛКИЕСТЬ ВОЗМОЖНОСТЬ КЛИЕНТАМ ДОПОЛНИТЕЛЬНО ЗАКАЗАТЬ ПРЕДЧИСТОВУЮ ОТДЕЛКУ (WHITE BOX). ПОДРОБНОСТИ И СТОИМОСТЬ ДАННОЙ ОПЦИИ МОЖНО УТОЧНИТЬ У МЕНЕДЖЕРОВ ОТДЕЛА ПРОДАЖ.
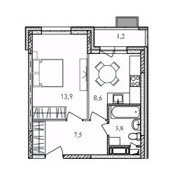
31 м2
9 / 17 этаж
Кирпич - монолит
- Показать контакты
- Добавить в избранное
31 м2
9 / 17 этаж
Кирпич - монолит
7 448 650
236 465 /м2
Новостройка,
дом сдан
дом сдан
