Дом, Большая Тарасовская, 99 Показать на карте
Тарасовка
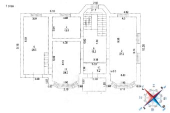
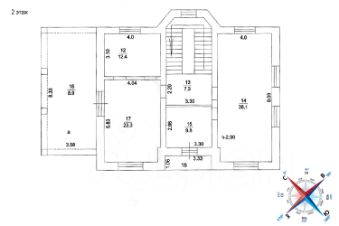
Арт. 61297577 Уважаемые покупатели!Предлагается к продаже двухэтажный жилой дом с цокольным этажом, для большой и дружной семьи! Дом расположен в тихом и зелёном районе, с прекрасным видом на природу. Адрес: Московская обл. р-н Пушкинский Тарасовка с. ул. Большая Тарасовская д. 99Дом общей площадью 290,6 м2, возведён в 2005 году на монолитном фундаменте. Построен из пеноблоков, с межэтажными ж/б перекрытиями, и внешне отделан декоративной штукатуркой и природным камнем. Крыша дома-металочерепица.Первый этаж: Просторная гостиная 48м2, совмещённый санузел, кухня 30м2, гардеробная комната.Второй этаж включают в себя три спальные комнаты (16м2+16м2+22м2), совмещённый санузел, постирочная комната.Цокольный этаж предлагает дополнительные удобства, включая русскую баню. Так же здесь находятся: комната отдыха, котельная, совмещенный санузел.Коммуникации:Электричество - 15 кВт,Отопление - газгольдер (магистральный газ по границе),Канализация - Септик 4-х степеней очистки,Водоснабжение - скважина + колодец,На участке, общей площадью 7,72 соток, расположился просторный двор с зоной барбекю, плодовыми деревьями и стоянкой на 8 машин.Участок огорожен забором, с въездными воротами. Местоположение дома в замечательном районе, со своей сложившейся инфраструктурой, включая магазины, школы, общественный транспорт, и ж/д станцию. Всё находится в непосредственной близости от дома, что делает его удобным для проживания!Транспортная доступность: 11 км от МКАД по Ярославскому шоссе,10 минут пешком до автобусной остановки,15 минут пешком до ж/д станции Тарасовская.Один взрослый собственник. Полная стоимость в договоре. Без залогов и обременений. Быстрый выход на сделку! Одобрение ипотеки в сложных случаях, и получении дополнительных скидок по % ставке от крупнейших банков-партнёров.Безопасность сделки обеспечена стандартами работы Гильдии Риелторов Московской области.Мы Вас ждём! Приходите, смотрите и выбирайте!
290 м2
3 этажа
Бетонные блоки
- Показать контакты
- Добавить в избранное
290 м2
3 этажа
Бетонные блоки
14 000 000
48 176 /м2
