Дом, Железнодорожная 2-я, 67 Показать на карте
Балашиха
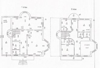
Номер в базе: 1849574. Представляем вашему вниманию уникальную возможность стать владельцем современного двухэтажного дома площадью 154 кв.м, расположенного в живописном и охраняемом поселке Купол-2, всего в 17 км от МКАД по Горьковскому шоссе и 14 км по Носовихинскому шоссе. Этот авторский проект создан с любовью и вниманием к деталям, чтобы вы могли наслаждаться комфортом и уютом.На первом этаже вас встретит просторная кухня-гостиная площадью 38 кв.м с большими окнами, которые наполняют пространство светом и создают атмосферу уюта. Здесь также расположена гостевая комната (кабинет) площадью 15 кв.м, душевая комната, гостевой санузел, прихожая-гардеробная и бойлерная-котельная. На втором этаже находятся спальная комната площадью 34 кв.м и детская комната 27 кв.м, а также просторная ванная комната 12 кв.м, где вы сможете расслабиться после долгого дня. Высокие потолки (3 метра) добавляют ощущение простора и свободы.Дом построен с использованием высококачественных материалов и современных технологий. Фундамент выполнен из монолитной плиты с 2-слойным армированием, стены из газобетонных блоков обеспечивают отличную теплоизоляцию, а плоская кровля утеплена и защищена от внешних воздействий. Все окна - двухкамерные стеклопакеты, что гарантирует тепло и тишину в вашем доме.Коммуникации включают электричество (3 фазы, 15 кВт), магистральный газ, современную систему канализации и дренажа. На земельном участке площадью 5 соток вы сможете создать свой уютный сад или зону для отдыха.Вы будете наслаждаться чистым свежим воздухом и уединением с природой, при этом всего в 1 км от городской застройки. В 500 метрах от поселка расположена развитая инфраструктура: магазины, школа, детский сад, бассейн и купальные зоны озеро Чудное и речка Черная.Этот дом строился для себя с использованием самых передовых технологий и лучших материалов. У вас есть возможность получить проект индивидуального строительства и фотографии всех этапов работ. Не упустите шанс стать владельцем этого великолепного дома, который станет вашим уютным уголком вдали от городской суеты!Код пользователя: 157403
154 м2
2 этажа
- Показать контакты
- Добавить в избранное
154 м2
2 этажа
18 000 000
116 732 /м2
