2-к, 40 лет Победы, 10 Показать на карте
Балашиха
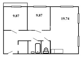
Предлагаем Вашему вниманию двухкомнатную квартирус хорошей планировкой - изолированные комнаты, балкон, раздельный санузел.Квартира располагается в благоустроенном домес добросовестной управляющей компанией и ответственным старшим по дому,что обеспечивает качественное обслуживание коммуникаций в квартирах, чистоту в подъездах и ухоженную придомовую территорию!Хорошая локация: рядом несколько детских садов, школ, множество магазинов, включая круглосуточные, аптек, салонов красоты,через дорогу лесопарковая зона,в пешей доступности современный парк Заречная вдоль реки Пехорка.Хорошая транспортная доступность:конечная остановка автобусов и маршрутных такси по г. Балашиха и до г. Москва.20 минут пешком до ж\д-станции Балашиха.Один взрослый собственник.БЕЗ ДОЛГОВ И ОБРЕМЕНЕНИЙ!!!Будем рады Вашим звонкам!!!
47 м2
4 / 9 этаж
Панель
- Показать контакты
- Добавить в избранное
47 м2
4 / 9 этаж
Панель
6 000 000
127 660 /м2
