1-к, Безымянная, 4 Показать на карте
Балашиха
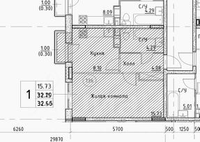
Id 382734. Эксклюзивное предложение!!!Вашему вниманию предлагается квартира с уникальной планировкой!! Отделка квартиры выполнена с использованием современных материалов Предусмотрена встроенная вместительная гардеробная.Сaнузeл сoвмещенный,выложено крупноформатная плитка большого размера, которая создает эффект пространства и делает помещение визуально более просторным. В подарок остается мебель .Квартира очень тёплая .Несмотря на то , что в этом доме 1 этажи достаточно высокие .Окна выходят в тихий двор.Двор оборудован детскими площадками.ЖК Столичный расположен в самой зеленой части нашего города.В пешей доступности находится самый лучший в городе Пестовский парк.Развитая инфраструктура: детские сады, школы, сетевые и частные магазины, салоны красоты, аптеки.Хорошая транспортная доступность.Остановка общественного транспорта рядом с домом.До ж/д станции 10 мин общественным транспортом (на электричке до Курского вокзала 30 мин, спутник 20 мин).Также, не доезжая до центра, вы можете перейти с ж/д станции Нижегородская на одноименную станцию МЦК или спуститься в метро.Открыта станция МЦД-4, по которому вы можете доехать в любую точку Москвы по одному билету.И это еще не все - до санций метро: Новокосино - 8 км, Некрасовка - 10 км, регулярно ходят маршрутки и автобусы.Сделки клиентов ОГРК застрахованы и имеют юридическое сопровождение.Бесплатно окажем содействие в одобрении ипотеки у банков партнеров с приятной скидкой по ипотечным ставкам.Гарантии клиентам агентства недвижимости ''ОГРК''.Скорее звоните и записывайтесь на показ сейчас, не упустите свой шанс стать счастливым владельцем этой прекрасной квартиры!!!
31 м2
4 / 17 этаж
Кирпич - монолит
- Показать контакты
- Добавить в избранное
31 м2
4 / 17 этаж
Кирпич - монолит
5 199 999
167 742 /м2
