Номер объекта: 550910. Продается уютная 1-комнатная квартира в зелёном микрорайоне ''Заря'' города Балашиха, с хорошо развитой инфраструктурой и удобной транспортной доступностью.
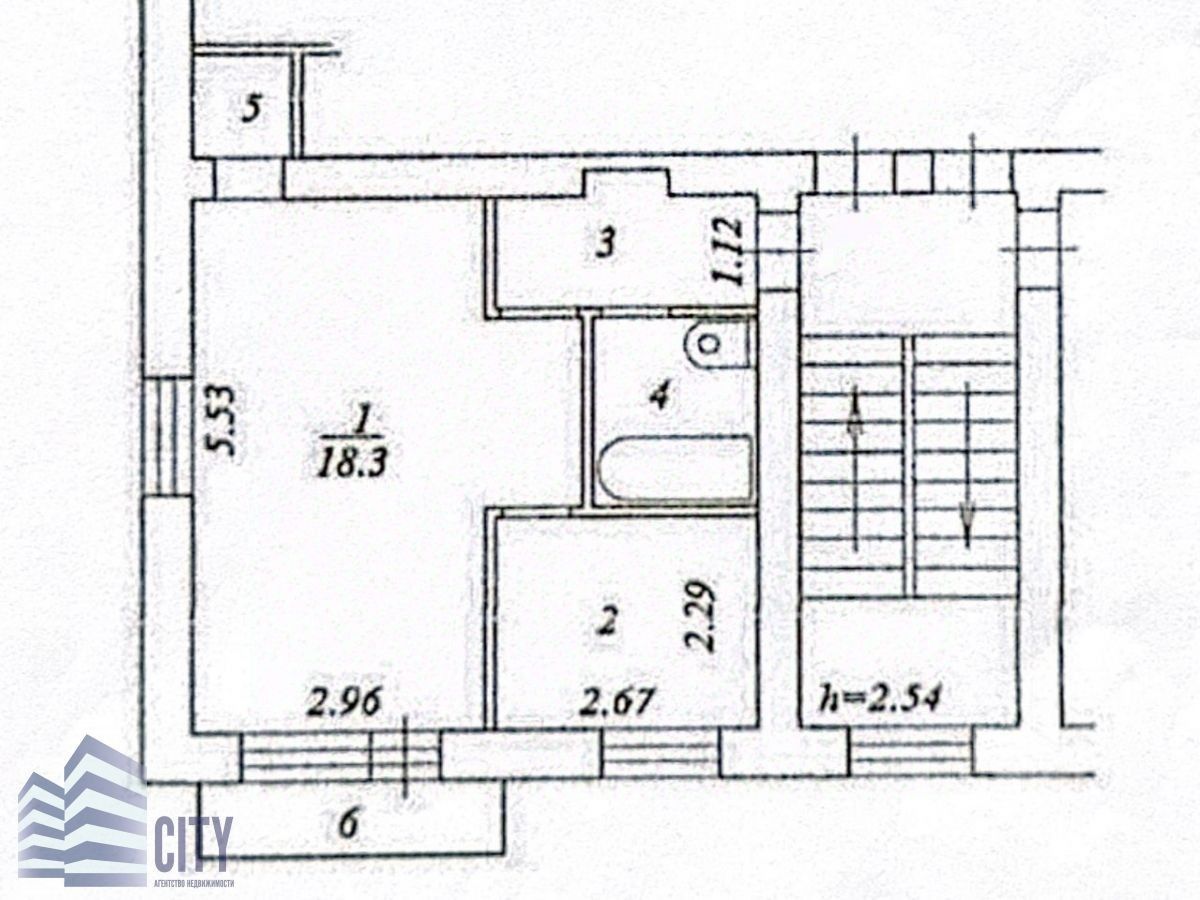
В квартире сделан капитальный ремонт для себя. Общая площадь 32 м2, которая включает в себя светлую жилую комнату, кухню, совмещенный санузел, кладовую комнату и балкон.
Квартира теплая, светлая, с прекрасным видом на лесопарковую зону.
В шаговой доступности два озера с зонами отдыха.
Рядом общеобразовательная школа, школа искусств, детский сад, дом культуры и музей.
Остановка общественного транспорта и станция электрички (МЦД-4) находятся в 5 минутах пешком.
1 взрослый собственник более 5 лет. Никто на прописан.
Свободная продажа.
По всем вопросам звоните.










