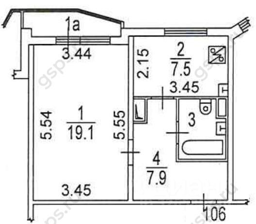
Уютная однокомнатная квартира с видом на озеро. Летом можно гулять и наслаждаться пикником, зимой - кататься на коньках. Детский сад в 15 метрах от подъезда, школа в доступности 5 минут пешком. Квартира отремонтирована, светлая. Соседи дружные - семейные пары с детьми. В пешей доступности от ст. ж/д Ольгино или Кучино Д4. Рядом музыкальная школа, дворец культуры, стадион, парк Ольгино, фитнес-центры, магазины.
Без торга.









