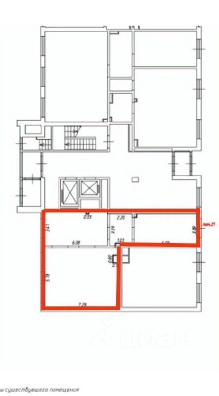
От собственника! Без комиссии!
Характеристики:
- 1 линия
- Отдельная входная группа
- Общая парковка
- Есть возможность разместить вывеску
- Погрузка/разгрузка: Главный вход
- Доступ 24/7
- ХВС/ГВС
- Свой санузел
- Центральное отопление
- Приточно-вытяжная вентиляция
- Есть кондиционер
- Максимальная мощность 64 кВт
- Чистовой ремонт
- Стрит ритейл
- С окнами
- Видеонаблюдение
- Коммунальные услуги оплачиваются отдельно
По всем вопросам можете обращаться к представителю собственника: Наталья Филева









