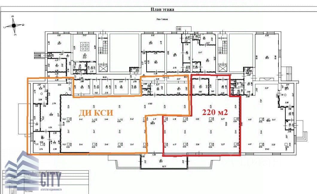
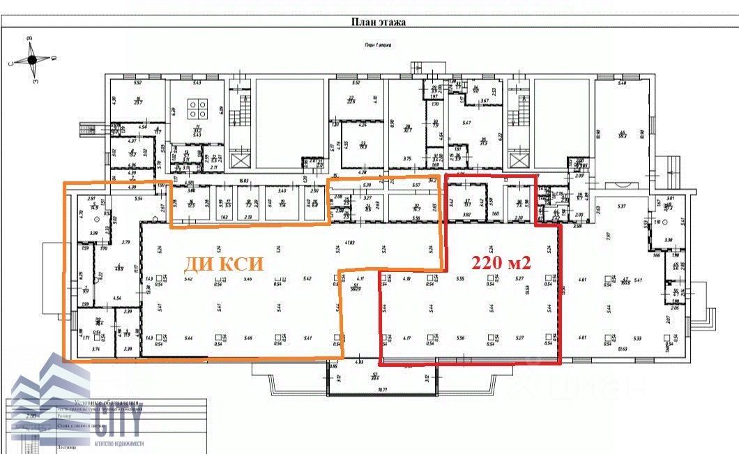
Номер объекта: 550894. Сдается в аренду помещение свободного назначения 92 м2 в густонаселенном районе мкр. Дзержинского г. Балашиха. Работает супермаркет ДИКСИ полный формат. Помещение имеет отдельный вход через тамбур с аптекой сетевой. Электрическая мощность - 50 кВт. В помещении выполнен косметический ремонт. Также есть помещение в этом же здании с отдельным входом площадью 253 м2.