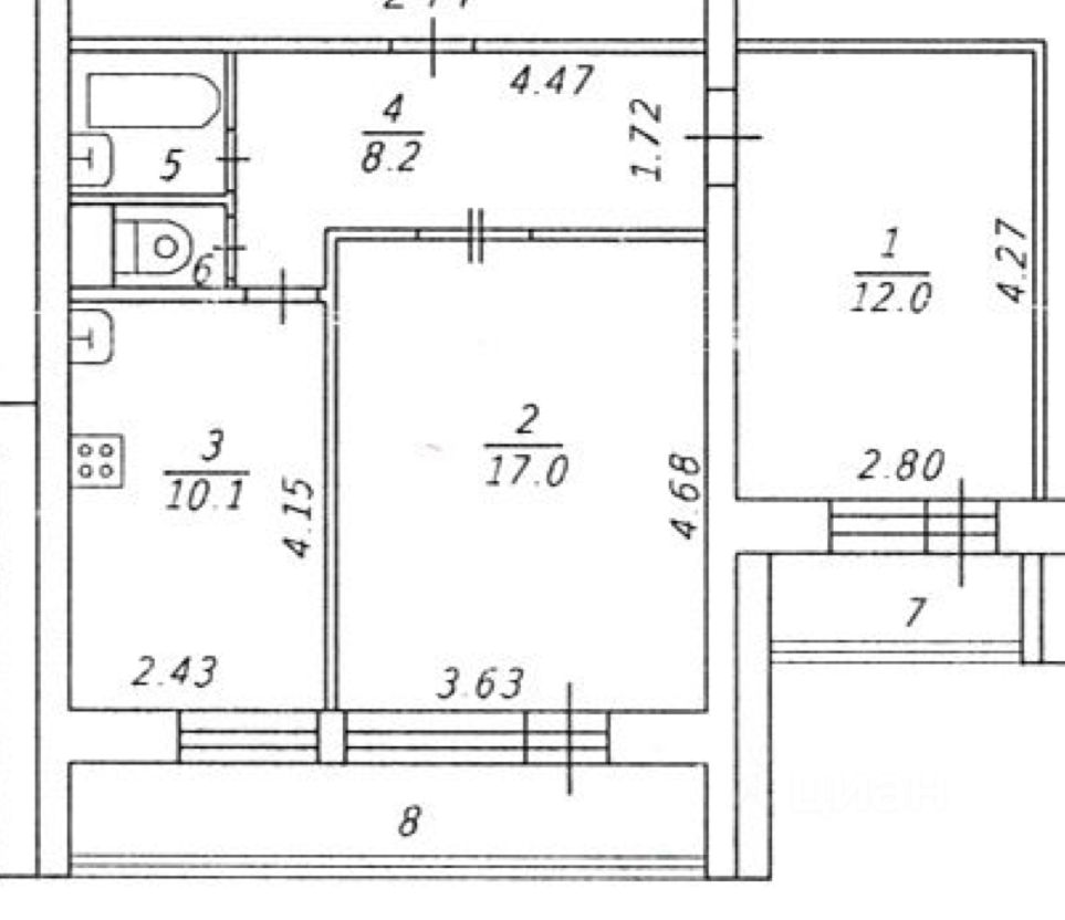
Продается в зеленом, экологически чистом районе г. Балашиха, ул. Объединения, дом 5, в 7 км от МКАД, теплая уютная светлая двухкомнатная квартира в отличном состоянии, на 15 этаже 16 этажного панельного дома с хорошими видовыми характеристиками, 1991 года постройки серии II-68, с изолированными комнатами 17 и 12 кв.метров. Хороший ремонт с заменой электропроводки и всех коммуникаций: входная металлическая дверь, окна ПВХ, новые радиаторы батарей, хорошие межкомнатные двери, на полу в комнатах - ламинат, коридор, прихожая и санузел - в плитке, натяжные потолки, две застекленные лоджии 6,4 кв.м. (из комнаты и кухни), и 3 кв.м. с выходом из комнаты, 2 шт. кондиционера в комнатах, сан.узел раздельный в плитке, большая 10 кв.м.
Продается в зеленом, экологически чистом районе г. Балашиха, ул. Объединения, дом 5, в 7 км от МКАД, теплая уютная светлая двухкомнатная квартира в отличном состоянии, на 15 этаже 16 этажного панельного дома с хорошими видовыми характеристиками, 1991 года постройки серии II-68, с изолированными комнатами 17 и 12 кв.метров. Хороший ремонт с заменой электропроводки и всех коммуникаций: входная металлическая дверь, окна ПВХ, новые радиаторы батарей, хорошие межкомнатные двери, на полу в комнатах - ламинат, коридор, прихожая и санузел - в плитке, натяжные потолки, две застекленные лоджии 6,4 кв.м. (из комнаты и кухни), и 3 кв.м. с выходом из комнаты, 2 шт. кондиционера в комнатах, сан.узел раздельный в плитке, большая 10 кв.м. встроенная кухня по индивидуальному проекту с индукционной плитой, духовым шкафом и посудомоечной машиной, прекрасный вид из окон на тихий и ухоженный двор с детской площадкой. Собственность 2018 года - договор купли-продажи и 2022 года договор дарения, 3 собственника, альтернативная продажа, интеллигентные соседи, чистый подъезд с камерами видеонаблюдения, 2 лифта: грузовой и пассажирский, дом в хорошем состоянии, детская и спортивная площадки, удобная парковка со свободными местами. Рядом с домом детский сад, школа, ФОК Метеор, сетевые магазины, ТЦ Смайл, поликлиника, Сбербанк, рынок, река Пехорка со смотровой площадкой и парками Солнечная и Заречная, Озерный лесопарк. Хорошее транспортное сообщение к метро Щелковская, Новогиреево, Измайловская, напротив дома остановки общественного транспорта.