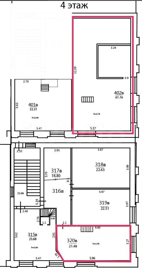
Предлагается в аренду офисный блок 89,7 кв.м.
Располагается по адресу г. Балашиха, пр-т Ленина, д.2.
Офисный блок состоит из нескольких комнат и помещением на втором ярусе.
Третий этаж, современный ремонт с антресольным этажом, высота потолков 2.40м , высота потолков антресоли 2.2м., офис находится на закрытой территории офисно-складского комплекса. Парковка. Круглосуточный доступ.
Аренда от собственника.





















