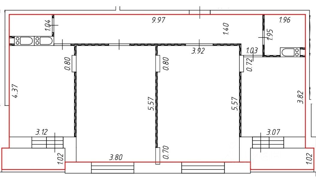
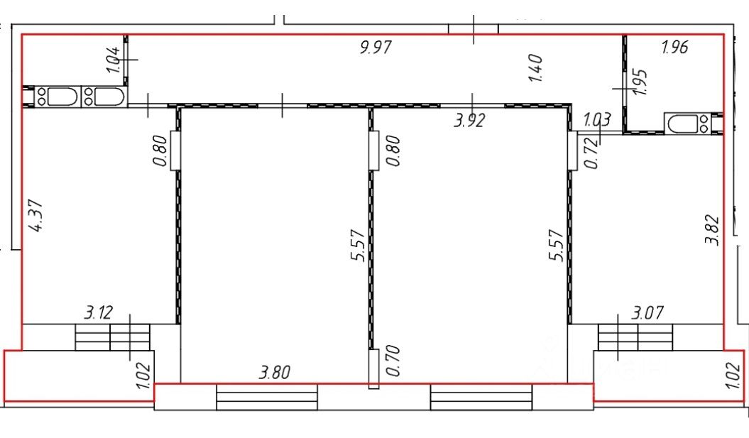
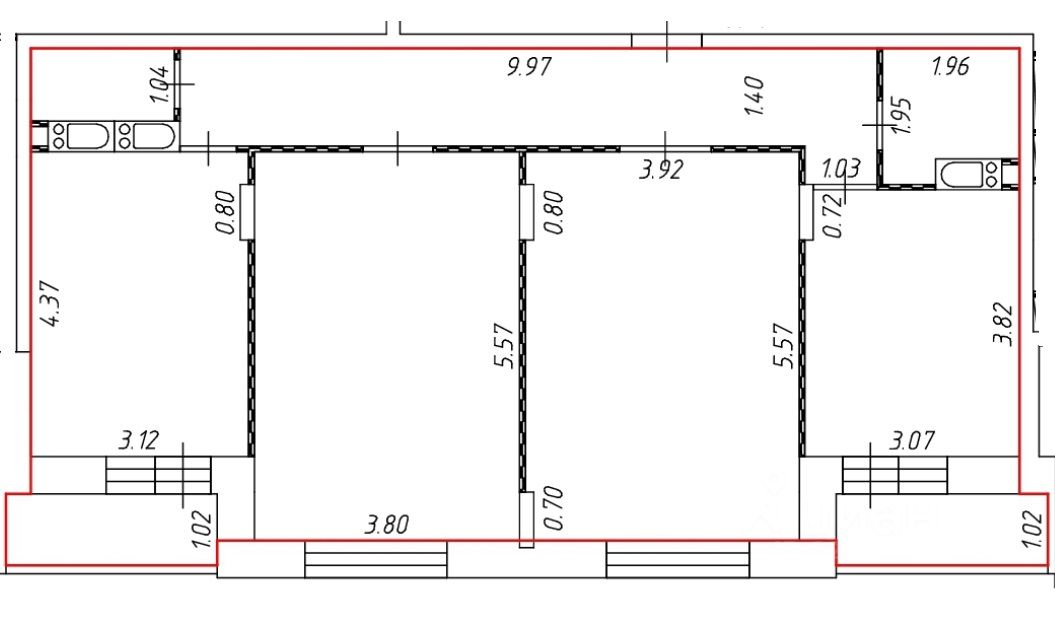
В продаже 3-комнатная квартира. Без отделки.
Общая площадь по выписке из ЕГРН 87,9 кв.м. + 2 застекленные лоджии (каждая по 3 кв.м.).
В квартире два санузла.
Зелёный район. В пешей доступности станция МЦД ''Кучино''.
Один взрослый собственник. Без обременений, никто не зарегистрирован. Прямая продажа. Полная сумма в договоре. Ипотека возможна. Быстрый выход на сделку.







