Если цена в объявлении изменится, мы сразу сообщим вам об этом на электронную почту.
Нажимая «Подписаться», вы соглашаетесь с правилами.
продам 1-к, Центральный кв-л, 94 990 000 ₽
7 июля 2025
Дата публикации объявления
Обн. 12 окт
Дата обновления объявления
270 754 ₽/м²
Чистая продажа
Термин "Чистая продажа" означает, что в квартире никто не прописан или
есть куда выписаться и вывезти вещи. Это лучший вариант для покупателя.
Вероятность срыва сделки минимальна.
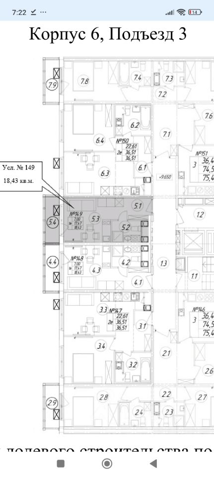
ДОМ СДАН! Продаётся студия общей площадью 18.43кв.м , чистовой отделкой и кухней Мария,в ЖК У реки. Эко Видное 2.район5-м этаже 18 этажного дома. корпус ''ЛЕВИТАН'' корпус 6 , 4й подьезд. Переуступка прав от физ. лица.
Жилой комплекс У реки — уникальный проект комфорт-класса, в котором применяются стандарты строительства и сервиса MR Group, характерные для проектов девелопера бизнес и премиум-классов.
6 корпусов переменной этажности, 8 км от МКАД, 30 минут до метро Домодедовская, в 2025 году запланировано открытие станции МЦД-5 (дорога по Павелецкого вокзала займёт 30 минут), квартиры с балконами, гардеробными, мастер-спальнями, двумя сан.
ДОМ СДАН! Продаётся студия общей площадью 18.43кв.м , чистовой отделкой и кухней Мария,в ЖК У реки. Эко Видное 2.район5-м этаже 18 этажного дома. корпус ''ЛЕВИТАН'' корпус 6 , 4й подьезд. Переуступка прав от физ. лица.
Жилой комплекс У реки — уникальный проект комфорт-класса, в котором применяются стандарты строительства и сервиса MR Group, характерные для проектов девелопера бизнес и премиум-классов.
6 корпусов переменной этажности, 8 км от МКАД, 30 минут до метро Домодедовская, в 2025 году запланировано открытие станции МЦД-5 (дорога по Павелецкого вокзала займёт 30 минут), квартиры с балконами, гардеробными, мастер-спальнями, двумя сан.узлами, безопасные дворы с детскими и испортивными площадками, собственная набережная с променадом, местами для пикников и рыбалки, два детских сада и школа на территории, развитая инфраструктура района.