Если цена в объявлении изменится, мы сразу сообщим вам об этом на электронную почту.
Нажимая «Подписаться», вы соглашаетесь с правилами.
продам 2-к, Реутовская, 1412 000 000 ₽
13 июня 2025
Дата публикации объявления
Обн. 29 ноя
Дата обновления объявления
1
Количество просмотров (+ просмотры за сегодня)
172 662 ₽/м²
Чистая продажа
Термин "Чистая продажа" означает, что в квартире никто не прописан или
есть куда выписаться и вывезти вещи. Это лучший вариант для покупателя.
Вероятность срыва сделки минимальна.
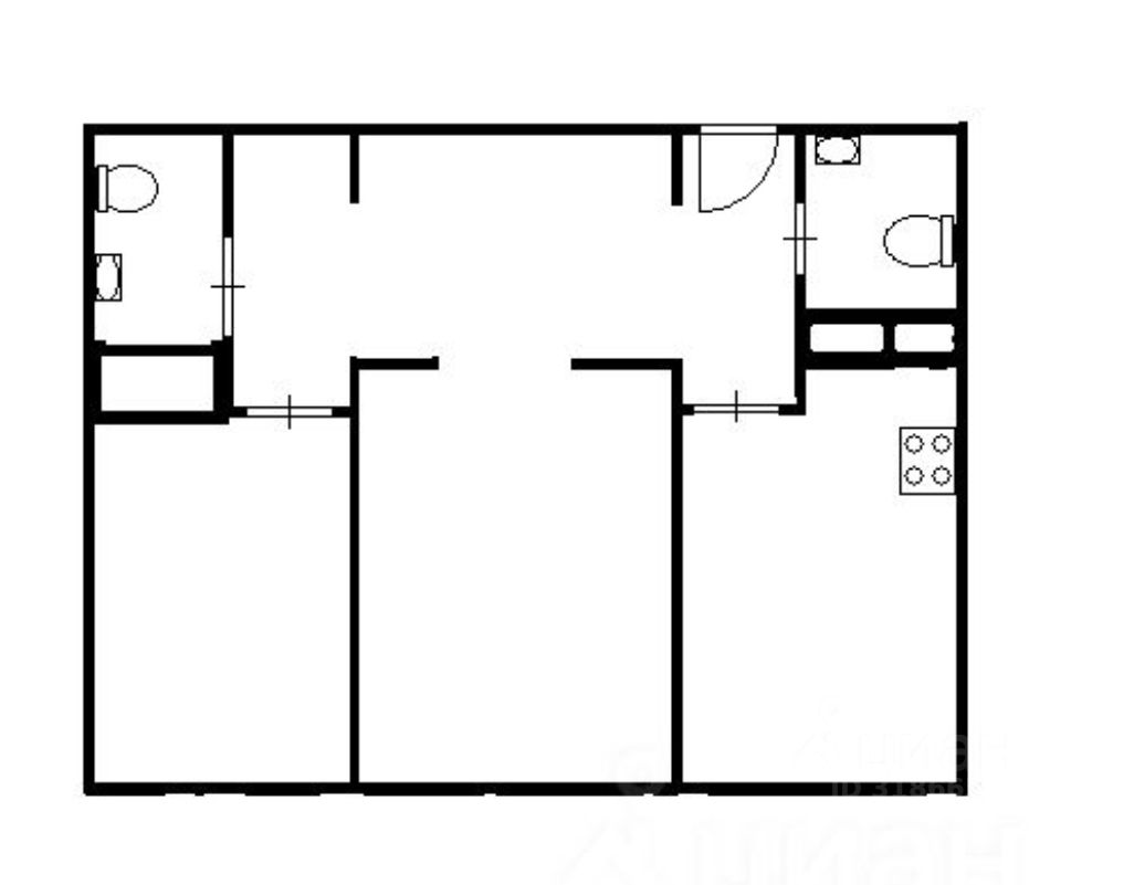
Свободная продажа. Готовы к сделке, юридически и физически свободная, Подается квартира с прекрасной планировкой,. квартира с большой кухней,15,2 ,и 2 сан. узлами по 4.4 и 3,2 метра, изолированными комнатами 16.2 и 14.1, гардеробом около 5 метров, и большими коридорами 8 метров , при этом она уютная расположена в хорошем месте, с развитой инфраструктурой:магазины, поликлинника, дет. сад. Удобный выезд . Есть место для парковки.
ТРАНСПОРТНОЕ СООБЩЕНИЕ: Городские автобусы, маршрутки. У дома, в 1 минуте - остановка (10 - 20 мин общественным транспортом до м. Новогиреево, Первомайская, Щелковская). Электрички. Есть жід сообщение с МЦД-4 (ст. Стройка в 10 мин. пешком), до Москва-Сити - 1 час пути через самый центр столицы.
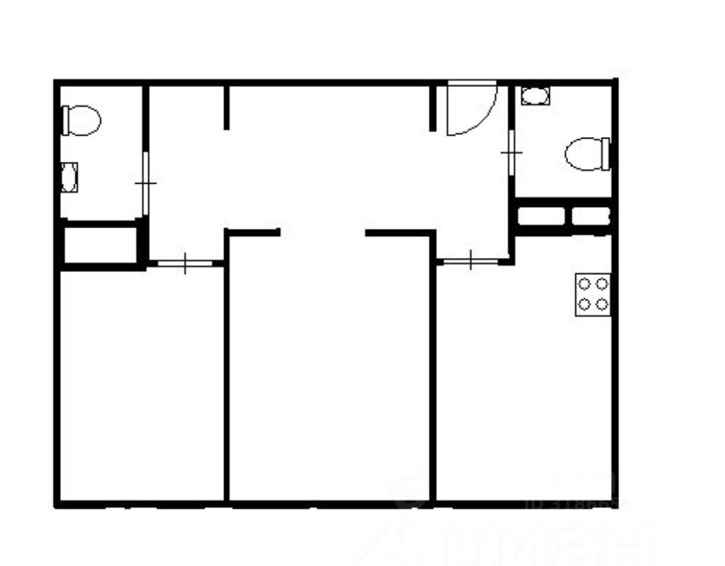
Свободная продажа. Готовы к сделке, юридически и физически свободная, Подается квартира с прекрасной планировкой,. квартира с большой кухней,15,2 ,и 2 сан. узлами по 4.4 и 3,2 метра, изолированными комнатами 16.2 и 14.1, гардеробом около 5 метров, и большими коридорами 8 метров , при этом она уютная расположена в хорошем месте, с развитой инфраструктурой:магазины, поликлинника, дет. сад. Удобный выезд . Есть место для парковки.
ТРАНСПОРТНОЕ СООБЩЕНИЕ: Городские автобусы, маршрутки. У дома, в 1 минуте - остановка (10 - 20 мин общественным транспортом до м. Новогиреево, Первомайская, Щелковская). Электрички. Есть жід сообщение с МЦД-4 (ст. Стройка в 10 мин. пешком), до Москва-Сити - 1 час пути через самый центр столицы.
Свободная продажа, без обременений, юридически и физически свободная, 2 взрослых собственника.