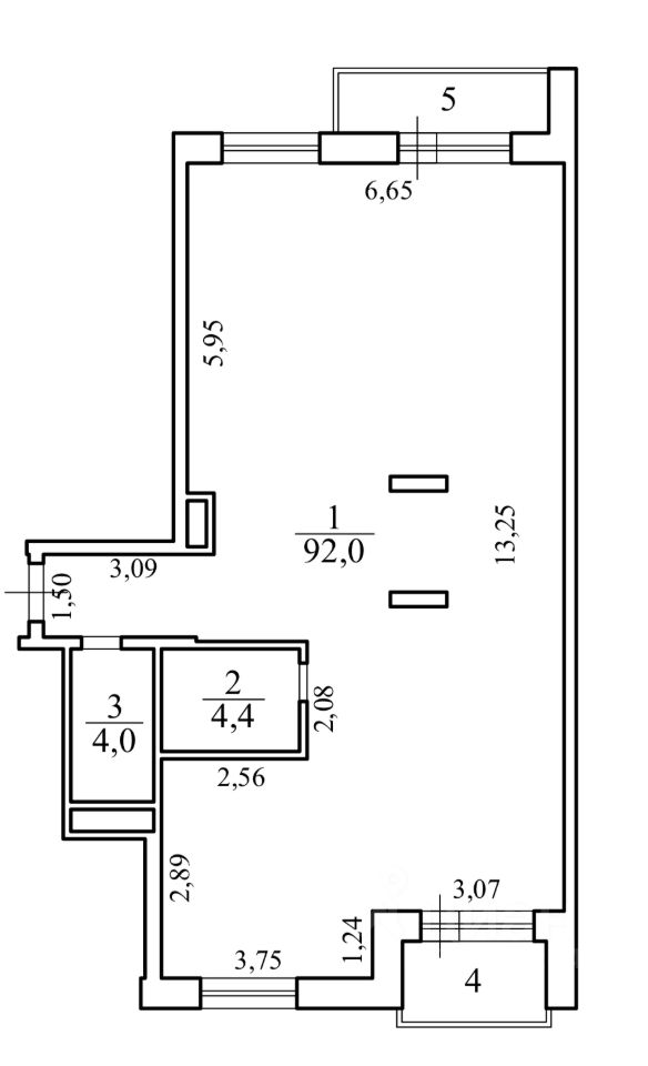
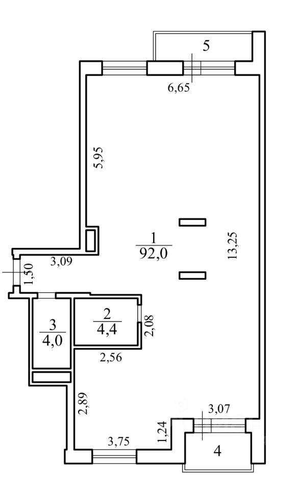
В зелёном районе, в окружении двух лесопарков, озеро, река, зоны отдыха, Вашему вниманию, в кирпичном доме, предлагается просторная квартира, распашонка, с двумя лоджиями и двумя с/у, гардеробной комнатой.
Не нужно переплачивать за чужой ремонт, есть возможность выстроить квартиру под себя-свободная перепланировке, новая входная дверь.
Вокруг: школы, д/сады, рядом огромный медицинский центр, магазины, в т.ч в доме, детская площадка.
Удобный выезд на два шоссе, Москва рядом.
Выделенная полоса общественного транспорта.
Свободная продажа.
Никто не зарегистрирован.
Обременений нет.
Полная стоимость
1 взрослый Собственник с 2014г








