Если цена в объявлении изменится, мы сразу сообщим вам об этом на электронную почту.
Нажимая «Подписаться», вы соглашаетесь с правилами.
продам 1-к, Зеленая, 105 600 000 ₽
6 июня 2025
Дата публикации объявления
Обн. 2 фев
Дата обновления объявления
7
Количество просмотров (+ просмотры за сегодня)
186 667 ₽/м²
Чистая продажа
Термин "Чистая продажа" означает, что в квартире никто не прописан или
есть куда выписаться и вывезти вещи. Это лучший вариант для покупателя.
Вероятность срыва сделки минимальна.
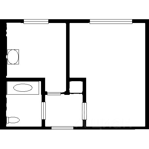
Продаётся однокомнатная квартира площадью 30 квадратных метров на пятом этаже девятиэтажного кирпичного дома, расположенного по адресу: Балашиха, микрорайон 15Б, Зелёная улица, дом 10. Дом построен в 1971 году и имеет хорошо развитую инфраструктуру: рядом находятся школа, детский сад, торговый центр, парк и фитнес-центр.
. Из окон открывается прекрасный вид на тихий двор, где расположены детская и спортивная площадки идеальное место для отдыха и занятий спортом на свежем воздухе. Также во дворе предусмотрена парковка для вашего автомобиля.
Расположение квартиры позволяет быстро добраться до различных районов города пешком или общественным транспортом. Рядом с домом находятся продуктовые магазины Магнит и супермаркет, а также детский сад , школа,детская школа искусств.
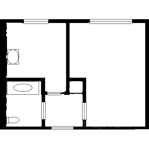
Продаётся однокомнатная квартира площадью 30 квадратных метров на пятом этаже девятиэтажного кирпичного дома, расположенного по адресу: Балашиха, микрорайон 15Б, Зелёная улица, дом 10. Дом построен в 1971 году и имеет хорошо развитую инфраструктуру: рядом находятся школа, детский сад, торговый центр, парк и фитнес-центр.
. Из окон открывается прекрасный вид на тихий двор, где расположены детская и спортивная площадки идеальное место для отдыха и занятий спортом на свежем воздухе. Также во дворе предусмотрена парковка для вашего автомобиля.
Расположение квартиры позволяет быстро добраться до различных районов города пешком или общественным транспортом. Рядом с домом находятся продуктовые магазины Магнит и супермаркет, а также детский сад , школа,детская школа искусств.
Приобретая эту квартиру, вы получаете не только комфортное жильё, но и возможность наслаждаться спокойной жизнью в окружении природы и удобств городской инфраструктуры. Здесь созданы все условия для счастливой и гармоничной жизни.