Если цена в объявлении изменится, мы сразу сообщим вам об этом на электронную почту.
Нажимая «Подписаться», вы соглашаетесь с правилами.
продам 3-к, Романычева, 59 800 000 ₽
20 мая 2025
Дата публикации объявления
Обн. 18 июня 2025
Дата обновления объявления
3
Количество просмотров (+ просмотры за сегодня)
146 487 ₽/м²
Чистая продажа
Термин "Чистая продажа" означает, что в квартире никто не прописан или
есть куда выписаться и вывезти вещи. Это лучший вариант для покупателя.
Вероятность срыва сделки минимальна.
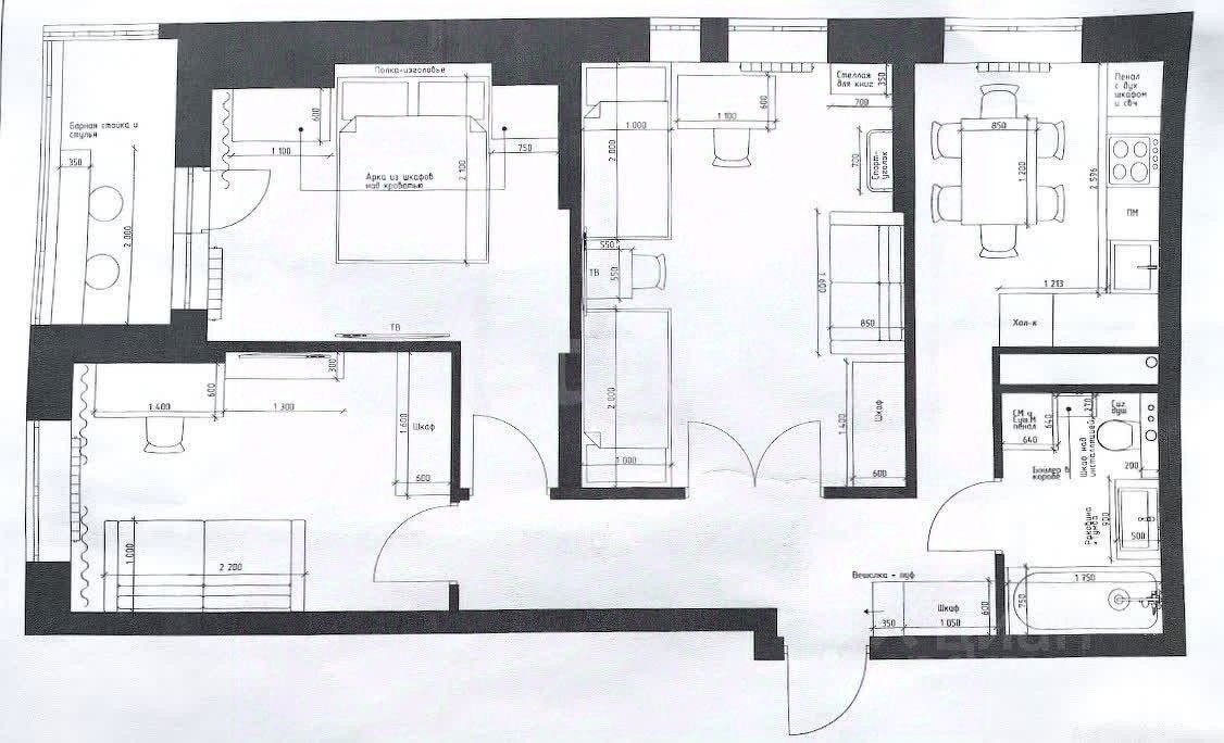
Номер в базе: 7781015. Предлагается к продаже 3-комнатная квартира в современном жилом комплексе ''Новоград Павлино'' (г. Балашиха) предлагает комфортное проживание в развитом районе с продуманной инфраструктурой. Общая площадь 69,3 кв.м (66,9 кв.м по ЕГРН), планировка включает три изолированные комнаты, просторную кухню и раздельный санузел. Гостиная площадью 17,5 кв.м подойдет для семейных вечеров или приема гостей, средняя комната (14,2 кв.м) имеет выход на лоджию, а третья (12 кв.м) может служить кабинетом или детской. Кухня 9,4 кв.м позволяет удобно разместить обеденную зону и современную технику. В квартире выполнена предчистовая отделка: стяжка пола, разводка коммуникаций (включая гребенку для воды), установлены инсталляция для унитаза и надежная входная дверь.
Номер в базе: 7781015. Предлагается к продаже 3-комнатная квартира в современном жилом комплексе ''Новоград Павлино'' (г. Балашиха) предлагает комфортное проживание в развитом районе с продуманной инфраструктурой. Общая площадь 69,3 кв.м (66,9 кв.м по ЕГРН), планировка включает три изолированные комнаты, просторную кухню и раздельный санузел. Гостиная площадью 17,5 кв.м подойдет для семейных вечеров или приема гостей, средняя комната (14,2 кв.м) имеет выход на лоджию, а третья (12 кв.м) может служить кабинетом или детской. Кухня 9,4 кв.м позволяет удобно разместить обеденную зону и современную технику. В квартире выполнена предчистовая отделка: стяжка пола, разводка коммуникаций (включая гребенку для воды), установлены инсталляция для унитаза и надежная входная дверь.
ЖК расположен в 7 км от МКАД по Носовихинскому шоссе, что обеспечивает быстрый выезд в Москву. Транспортная доступность усилена близостью станций МЦД (Кучино, Ольгино) и метро Некрасовка дорога до них занимает 15 минут на общественном транспорте. Район отличается развитой социальной инфраструктурой: в шаговой доступности школы, детские сады, поликлиника, ФОК, а также гипермаркет ''Лента'', сетевые магазины, кафе и салоны красоты. Для отдыха предусмотрены благоустроенные дворы с игровыми площадками и лесопарки ''Ольгинский'' и ''Павлинский''.
Квартира находится в собственности у одного владельца, приобретена у застройщика, без прописанных лиц. Возможен быстрый выход на сделку. Объект подойдет для семей с детьми или тех, кто ценит баланс между городским комфортом и спокойствием спального района. Показ проводится по предварительной договоренности. Код пользователя: 121915