Если цена в объявлении изменится, мы сразу сообщим вам об этом на электронную почту.
Нажимая «Подписаться», вы соглашаетесь с правилами.
продам 3-к, Новая, 367 990 000 ₽
28 мар 2025
Дата публикации объявления
Обн. 20 окт
Дата обновления объявления
9
Количество просмотров (+ просмотры за сегодня)
129 079 ₽/м²
Чистая продажа
Термин "Чистая продажа" означает, что в квартире никто не прописан или
есть куда выписаться и вывезти вещи. Это лучший вариант для покупателя.
Вероятность срыва сделки минимальна.
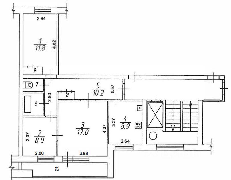
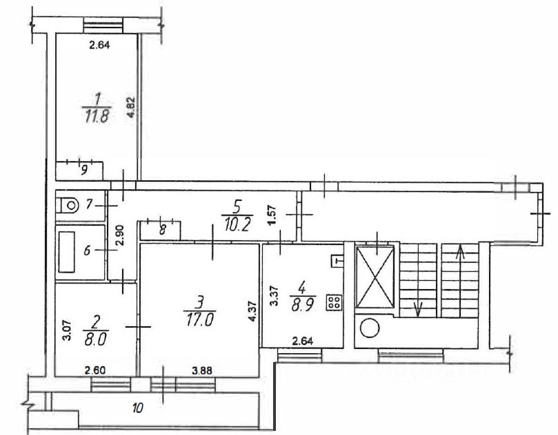
Светлана - продажа 3-ех комнатной квартиры с изолированными комнатами и застекленной лоджией. Кирпичный дом 1979 года постройки, в тихом зеленом районе Железнодорожного. Площадь квартиры с учетом лоджии - 65,4 кв м. Без учета лоджии - 61,9 кв м. До платформы диаметра - 15 мин пешком. До Москвы (Курский вокзал) очень удобно и быстро - 15-20 мин экспрессом, 35 мин - обычной электричкой. Составы обновленные, комфортные, отправляются каждые 5-10-15 мин. Транспортная доступность хорошая. Рядом красивый парк со спортом и развлечениями, вся инфраструктура - в наличии. Ремонт был давно, понимаем. Старались поддерживать порядок и уют)) Фото, видео и планировка квартиры актуальные. Квартира много лет в одной семье, история владения прозрачная.
Светлана - продажа 3-ех комнатной квартиры с изолированными комнатами и застекленной лоджией. Кирпичный дом 1979 года постройки, в тихом зеленом районе Железнодорожного. Площадь квартиры с учетом лоджии - 65,4 кв м. Без учета лоджии - 61,9 кв м. До платформы диаметра - 15 мин пешком. До Москвы (Курский вокзал) очень удобно и быстро - 15-20 мин экспрессом, 35 мин - обычной электричкой. Составы обновленные, комфортные, отправляются каждые 5-10-15 мин. Транспортная доступность хорошая. Рядом красивый парк со спортом и развлечениями, вся инфраструктура - в наличии. Ремонт был давно, понимаем. Старались поддерживать порядок и уют)) Фото, видео и планировка квартиры актуальные. Квартира много лет в одной семье, история владения прозрачная. Долгов и обременений нет, свободная продажа. Просмотры - по предварительной договоренности.