сдам офисное помещение, Звездная, 7б80 000 ₽ в месяц
15 окт 2024
Дата публикации объявления
Обн. 20 мая
Дата обновления объявления
23
Количество просмотров (+ просмотры за сегодня)
1334 ₽/м² в месяц
Параметры
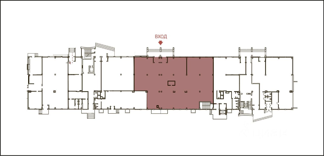
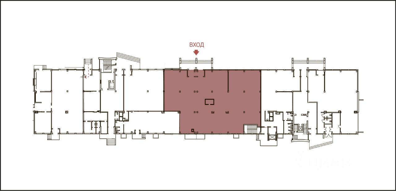
Общая площадь60 м2
Этаж3
Год постройки1987
ПРЯМАЯ АРЕНДА от собственника. Помещение с отделкой от 60 кв.м (на разных этажах).
Бизнес-центр на Звёздной 7Б - 5-этажное здание, оборудованное современными инженерными системами, соответствующими требованиями к офисам класса В. Общая площадь 12 000 кв. м. Арендуемая площадь 9 350 кв. м.
ИНФРАСТРУКТУРА Развитая инфраструктура внутри здания: ресторан, кафе, супермаркет, банкоматы, фитнес-клуб.
ХАРАКТЕРИСТИКИ Имеются пассажирские лифты и грузоподъемник, обслуживающий 1-й и цокольный этажи. Круглосуточная охрана, система контроля доступа, видеонаблюдение. Предоставляются телефонные линии и интернет (4 альтернативных провайдера, ВОЛС).
ПРЯМАЯ АРЕНДА от собственника. Помещение с отделкой от 60 кв.м (на разных этажах).
Бизнес-центр на Звёздной 7Б - 5-этажное здание, оборудованное современными инженерными системами, соответствующими требованиями к офисам класса В. Общая площадь 12 000 кв. м. Арендуемая площадь 9 350 кв. м.
ИНФРАСТРУКТУРА Развитая инфраструктура внутри здания: ресторан, кафе, супермаркет, банкоматы, фитнес-клуб.
ХАРАКТЕРИСТИКИ Имеются пассажирские лифты и грузоподъемник, обслуживающий 1-й и цокольный этажи. Круглосуточная охрана, система контроля доступа, видеонаблюдение. Предоставляются телефонные линии и интернет (4 альтернативных провайдера, ВОЛС). На внутренней территории здания обустроена наземная охраняемая парковка на 85 м/м, а также гостевая парковка на 20 м/м.
РАСПОЛОЖЕНИЕ Бизнес-центр расположен на оживленной транзитной магистрали, которая проходит через центр г. Балашиха, соединяющей Щелковское и Горьковское направления. Имеет удобные подъездные пути: напротив здания располагаются автобусная станция, остановки общественного транспорта, в 5 минутах езды находится Ж/Д станция ''Балашиха'' с отправлением поездов до Курского вокзала.